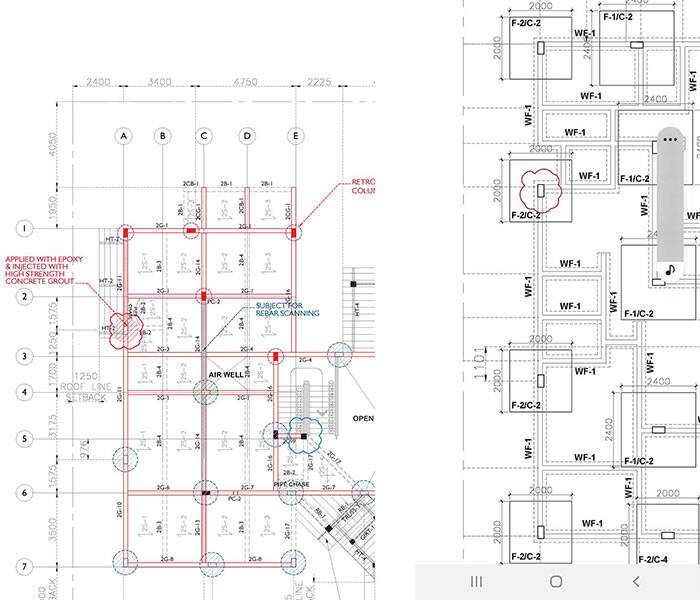
Beams and Column Strengthened
Carbon Fiber Sheet- HORSE Construction

Select language



















Carbon Fiber Sheet- HORSE Construction
Improper construction leads to structural problems and diseases, and carbon fiber is used for reinforcement
Because of the epidemic, the house was half repaired. Later, when the epidemic ended, some problems were found. Improper construction leads to structural problems and structural diseases. After the diagnosis and design of the design company, the carbon fiber reinforcement was finally determined. Select Shanghai Horse's carbon fiber reinforcement material




Website Map | Corporate | Contact | Privacy